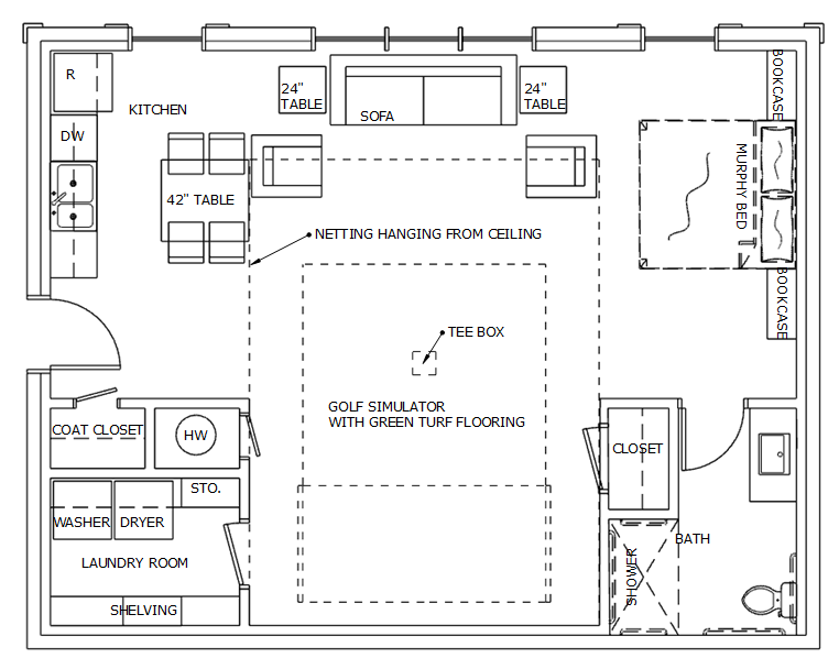
render a modern studio apartment with an open floor plan use soft white walls and a light oak wood floor the kitchen features sleek stainless steel appliances and white marble countertops the living area has a plush neutral sofa with colorful accent pillows and two small distressed white wood side tables a 42 round wooden dining table is accompanied by 4 upholstered chairs on wheels create a cozy atmosphere with warm lighting the golf simulator space should have green grass turf with projection screen at the south wall white marble tile flooring white plumbing fixtures with golf faucets show wood flooring and neutral paint color continuing into closet spaces with no other details murphy bed should show fold out king bed with white bookcases on either side of the bed laundry room has white washer and dryer with millwork storage above and beside storage shelving in laundry room on south wall show white drapes with colorful patterns at all windows include a golf simulator area with bright green turf flooring surrounded by light gray netting hanging from the ceiling the murphy bed is folded against the wall next to white bookcases add a compact laundry room with stacked white washer and dryer units the bathroom features sleek white tiles and polished chrome fixtures overall ensure a minimalist and elegant design with natural light streaming in from large windows