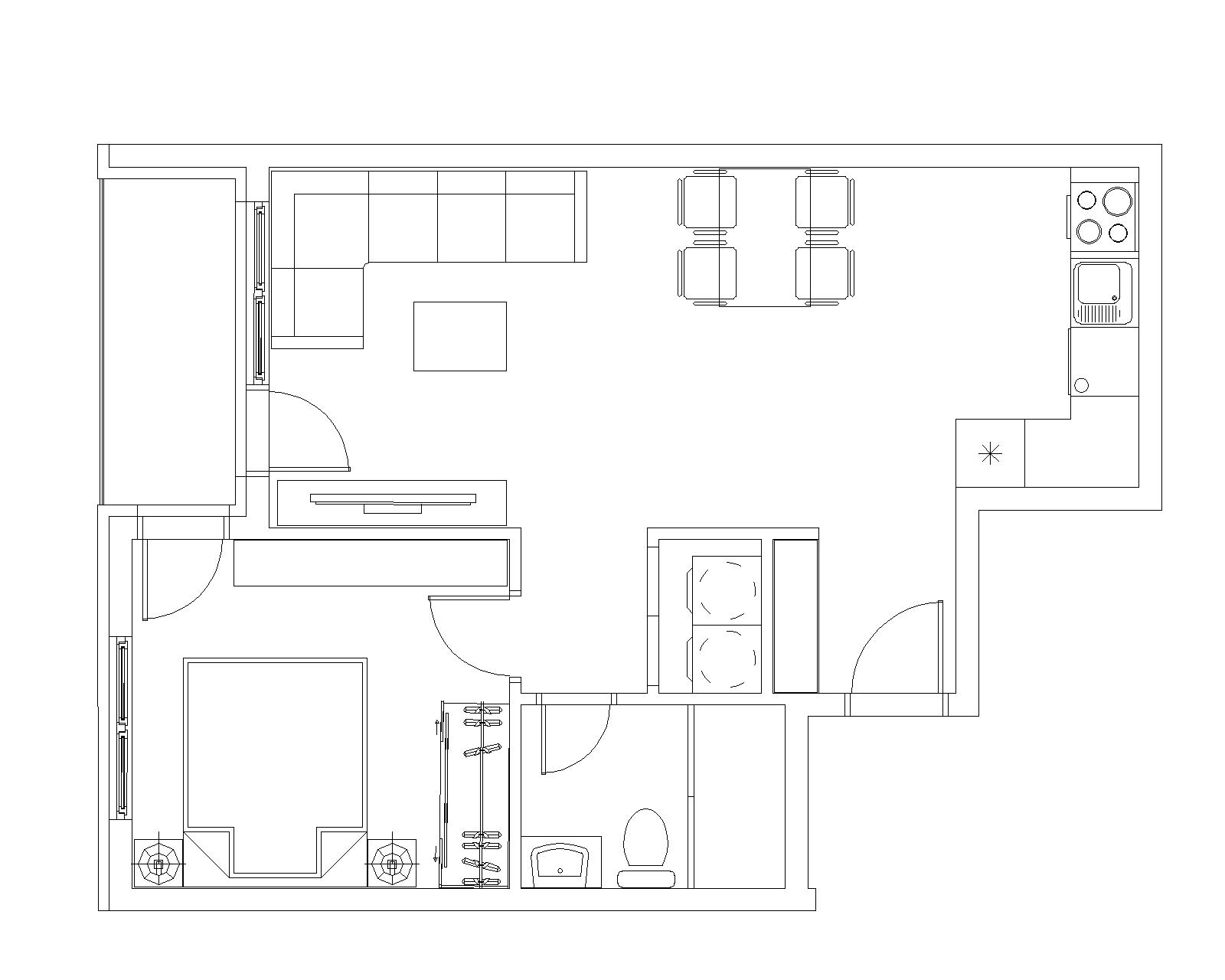
convert this floor plan into a modern isometric 3d view of a full house show the space from an elevated angle with furniture walls and details visible in tbe bathroom the right side is just shower use the same furniture as shows on the plan do not change the orientation of the floorplan