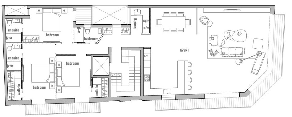
big bjarke ingels group interior from the top image is of a furniture plan generate an isometric view of it and make it such that the design is contemporary and cosy with timber floors for the bedrooms and tiles for the k d l please note carpets and soft furnishings architecture