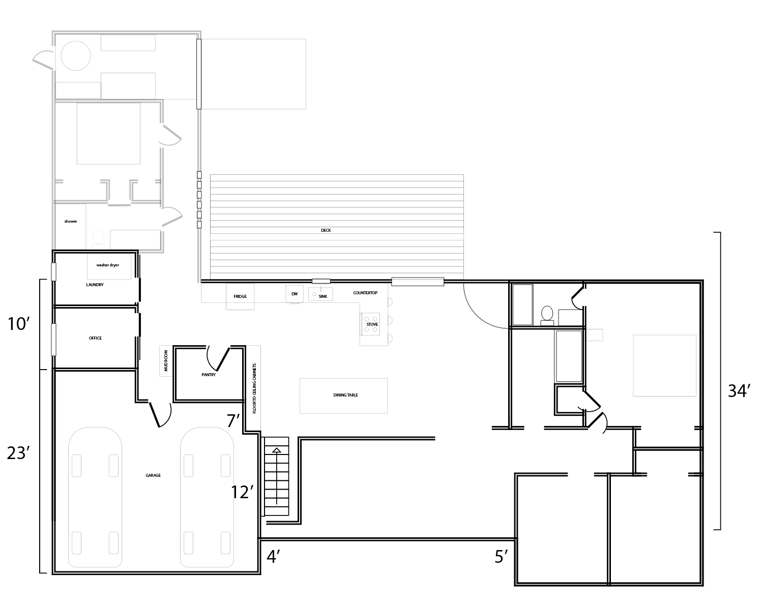
convert this floor plan into a realistic isometric 3d view of a full house show the space from an elevated angle with furniture walls and details visible the walls are 8 high the flooring is light sandal wood plank placed parallel with the counter tops the counter top should be white marble the counter top is along the wall with the window and forms an l shape with a stove in the l turn we want the cabinets to be a medium wood and modern the window above the sink is apx 3 x 3 use the same furniture as shows on the plan do not change the orientation of the floorplan