archsynth
Sign Up
Open main menu
Image to 3d model
Compare
Testimonials
Contact us
Log in
→
Signup
Archsynth generation
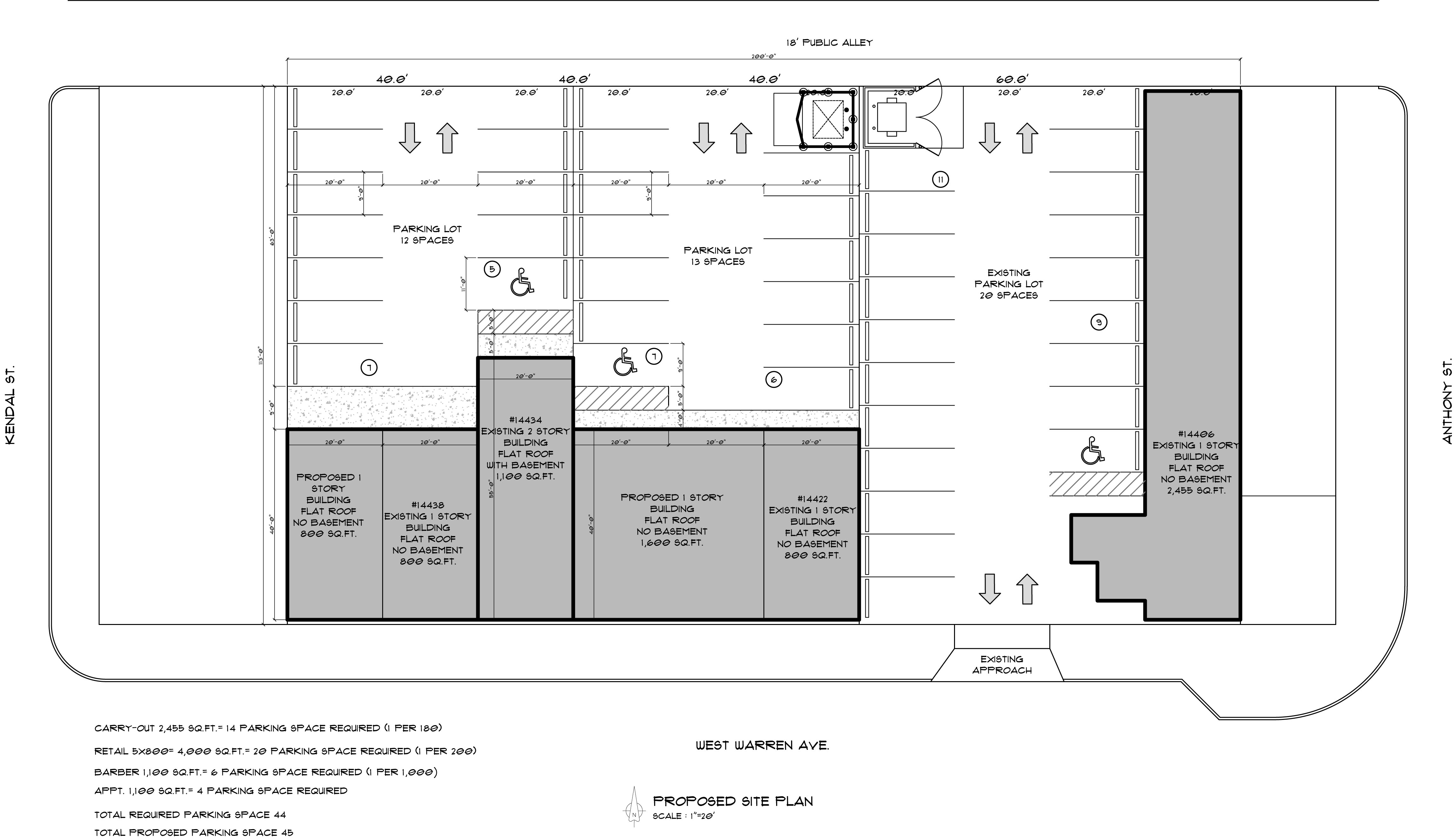
Input image
Copy Prompt
exterior shot render the same parking space and the exate building shape stic to the drawing shape
Concept to Render
strength 75
seed 10
Start Creating Renders Now
Related Posts
Start Creating Renders Now
View more