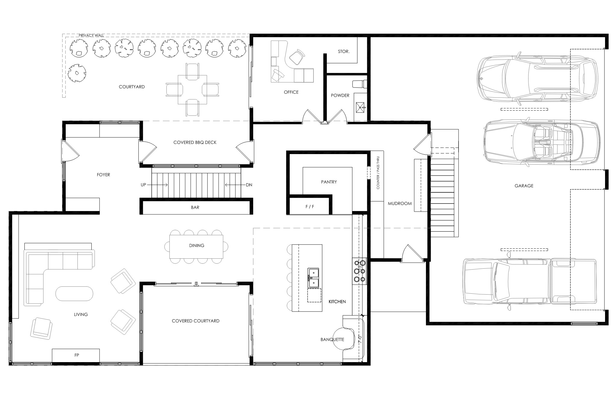
convert this floor plan into a realistic isometric 3d view of a full house show the space from an elevated angle with furniture walls and details visible moody but light colours windows have thin black frames large format tiles throughout furniture should have some colour and comfort use the same furniture as shows on the plan do not change the orientation of the floorplan