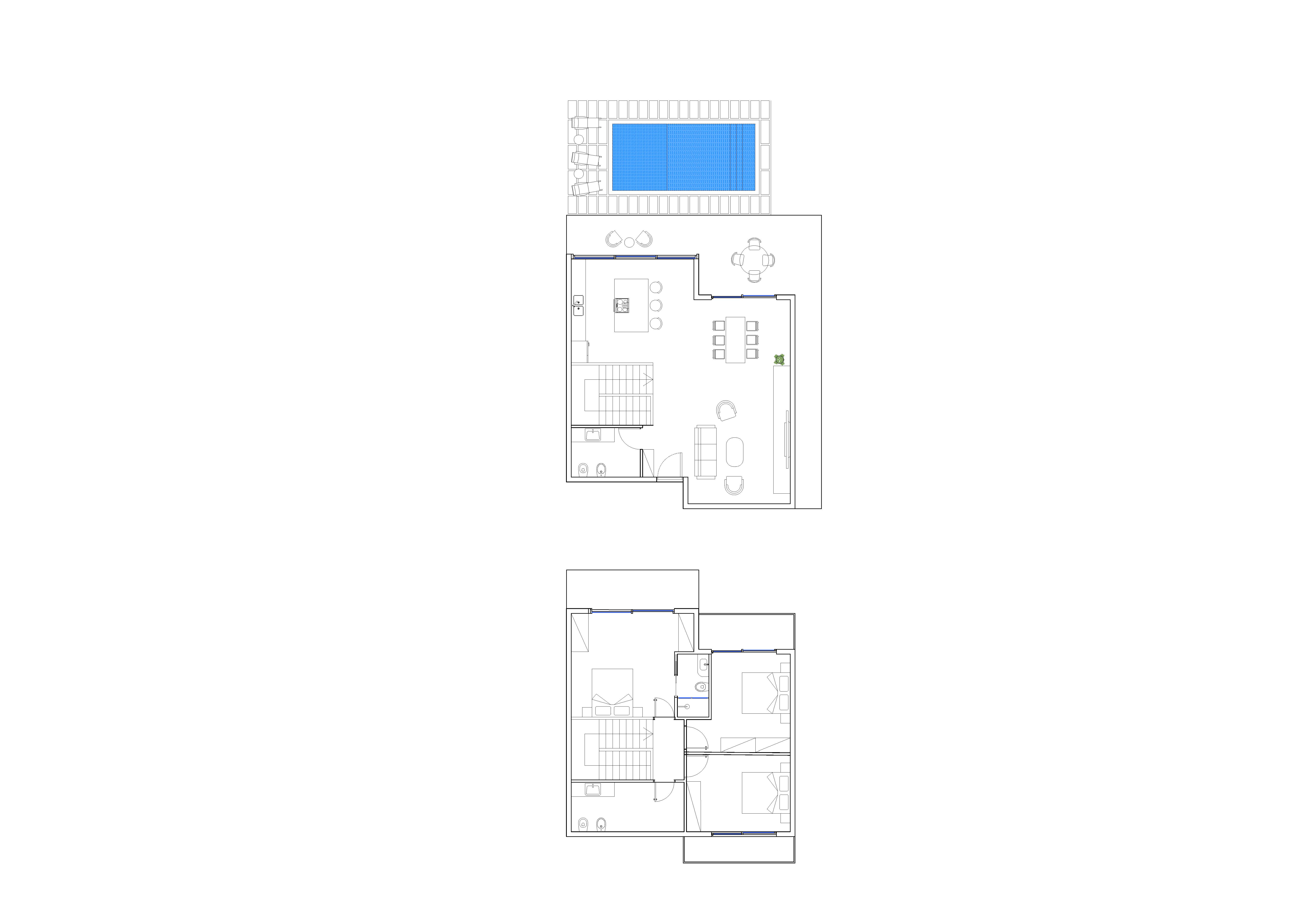
alvar aalto exterior shot a beautifully detailed architectural rendering of a modern two story house floor plan the ground floor displays a luxurious outdoor pool area with vibrant blue water surrounded by smooth light grey tiles inside the living area features warm earth toned wooden floors and sleek white modern furniture the dining area has a minimalist glass table with elegant chairs resting under soft pendant lighting the kitchen is equipped with stainless steel appliances and white cabinetry creating a clean and sophisticated look the top floor showcases three cozy bedrooms with plush beige carpets and soothing pastel walls the ambiance is serene and inviting bathed in natural sunlight streaming through large windows with lush green plants strategically placed for a touch of nature architecture