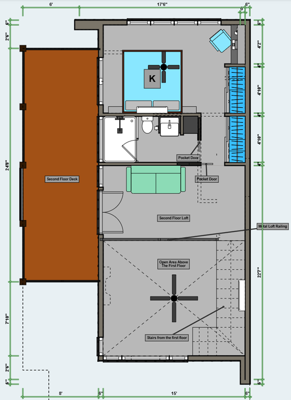
convert this floor plan into a realistic isometric 3d view of a full house show the space from an elevated angle with furniture walls and details visible this is the second floor of a small home with an open loft area above the living room on the second floor the floor throughout the home matches the outdoor deck with a reddish colored walnut plank flowing from front to back with the exception of the bathroom being a large black slate tile flooring use the same furniture as shows on the plan do not change the orientation of the floorplan