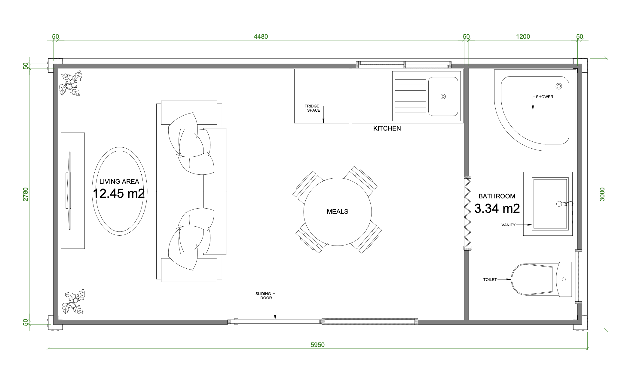
convert this floor plan into a realistic isometric 3d view of a full house show the space from an elevated angle with furniture walls and details visible isometric 3d render of a compact modern studio layout based on a floor plan open plan living dining and kitchen space with a separate bathroom on the right living area includes a 2 seat sofa facing a wall mounted tv neutral tones soft rug minimal decor indoor plants dining area centered with a round table and four chairs kitchen along the back wall with modern cabinetry light wood and white finishes integrated fridge sink and cooktop bathroom includes shower vanity and toilet clean contemporary design with light tiles use realistic proportions based on architectural dimensions clean lines and accurate layout style modern minimalist scandinavian influence materials light timber flooring matte white cabinetry soft fabric upholstery glass and ceramic details lighting soft natural daylight subtle shadows bright and airy atmosphere camera isometric view top down angled at 30 45 degrees full apartment visible high detail realistic rendering architectural visualization quality use the same furniture as shows on the plan do not change the orientation of the floorplan