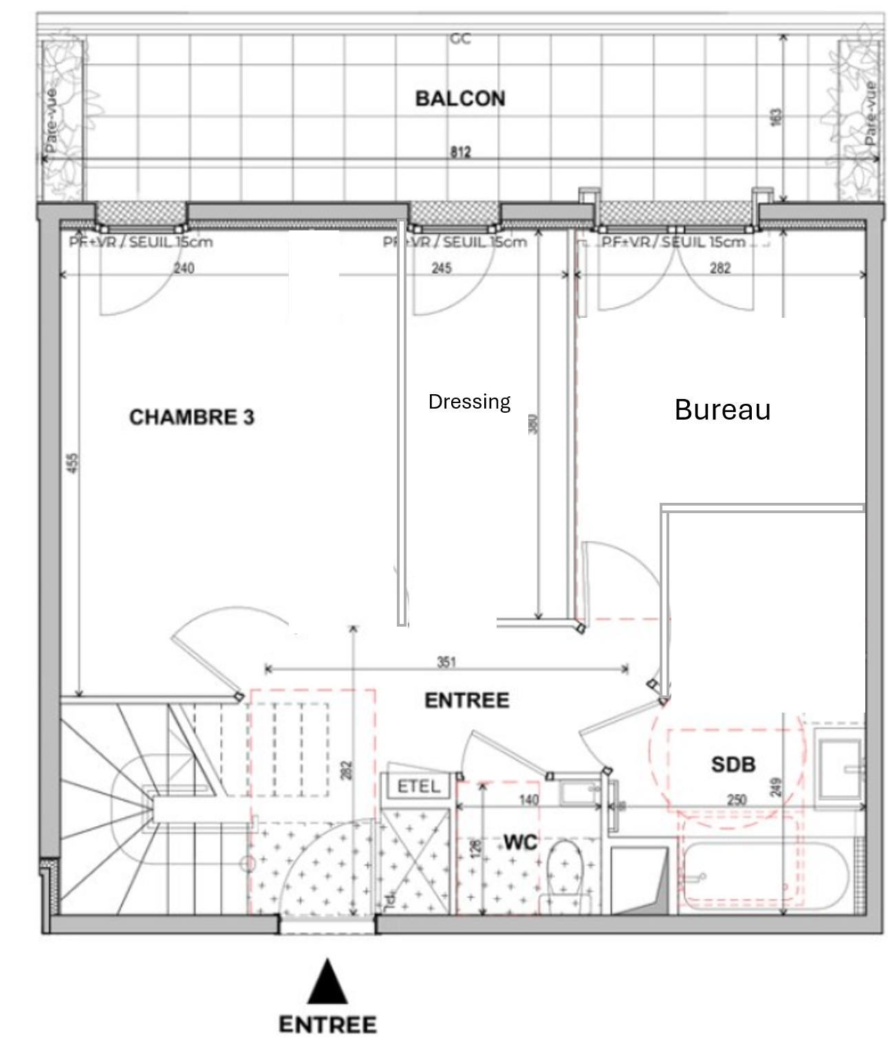
convert this floor plan into a realistic isometric 3d view of a full house show the space from an elevated angle with furniture walls and details visible global flooring living areas circulation polished waxed concrete floors throughout all main living spaces palette warm beige grey tones smooth matte finish with subtle light reflections seamless transitions between rooms bathroom sdb master suite grade italian walk in shower with frameless floor to ceiling glass panel rainfall ceiling showerhead freestanding sculptural bathtub organic form matte stone finish double sink vanity with stone countertop wall mounted faucets integrated under mirror lighting floor walls large format beige porcelain stoneware tiles honed finish tight grout lines mediterranean warmth with contemporary precision dressing room full perimeter built in closets flush panel doors floor to ceiling height integrated handles open central circulation axis warm beige lacquered or natural wood finish coherent with the global mediterranean palette home office bureau dedicated working office setup structured desk with integrated computer workstation ergonomic layout built in shelving or cabinetry ambient and task lighting layered materials echoing waxed concrete and warm wood tones of the main spaces wc laundry room integrated washing machine concealed behind cabinetry or recessed panel no exposed appliance floor beige porcelain stoneware matching sdb specification for visual continuity use the same furniture as shows on the plan do not change the orientation of the floorplan