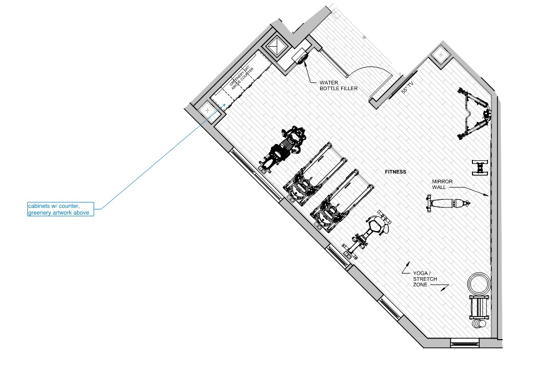
interior shot fitness room