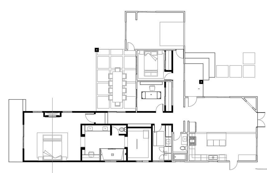
convert this floor plan into a realistic isometric 3d view of a full house show the space from an elevated angle with furniture walls and details visible create a stunning 3d architectural rendering based on a floor plan the walls should be a smooth light gray with a matte finish allowing natural light to reflect softly enhancing a modern and spacious feel use light oak wood for the flooring throughout the space giving warmth and continuity the kitchen should feature sleek white marble countertops with stainless steel appliances dining area should have a contemporary glass table with dark mahogany chairs bathrooms will have cool blue tiles for a refreshing atmosphere bedrooms are designed with soft cream walls and plush midnight blue bedding incorporate large windows with a view of a lush green garden the overall atmosphere should be serene and inviting with an emphasis on natural light and minimalist elegance use the same furniture as shows on the plan do not change the orientation of the floorplan