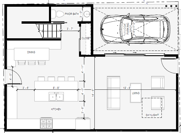
convert this floor plan into a realistic isometric 3d view of a full house show the space from an elevated angle with furniture walls and details visible polished concrete floors stairs white oak wood kitchen counters black soapstone modern furniture use the same furniture as shows on the plan do not change the orientation of the floorplan