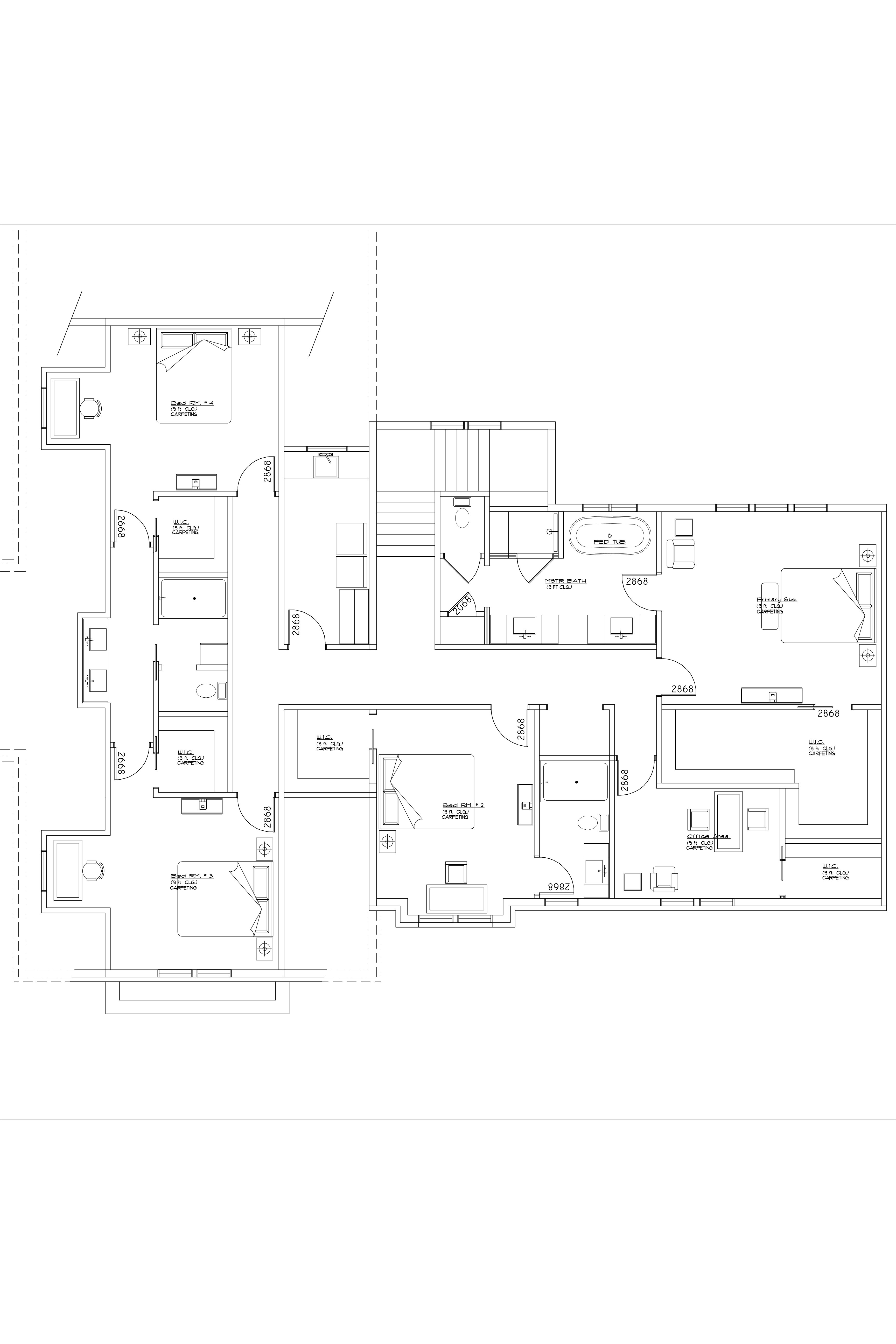
convert this floor plan into a realistic isometric 3d view of a full house show the space from an elevated angle with furniture walls and details visible show as a isometric view show walls at 9 ft and rotate on a 45 degree angle show hallway as wood flooring show all open areas as carpet floor in medium charcoal color show all bathroom with tile as light grey show all cabinets as an off white as a shaker style show all walls as light grey in color use the same furniture as shows on the plan do not change the orientation of the floorplan