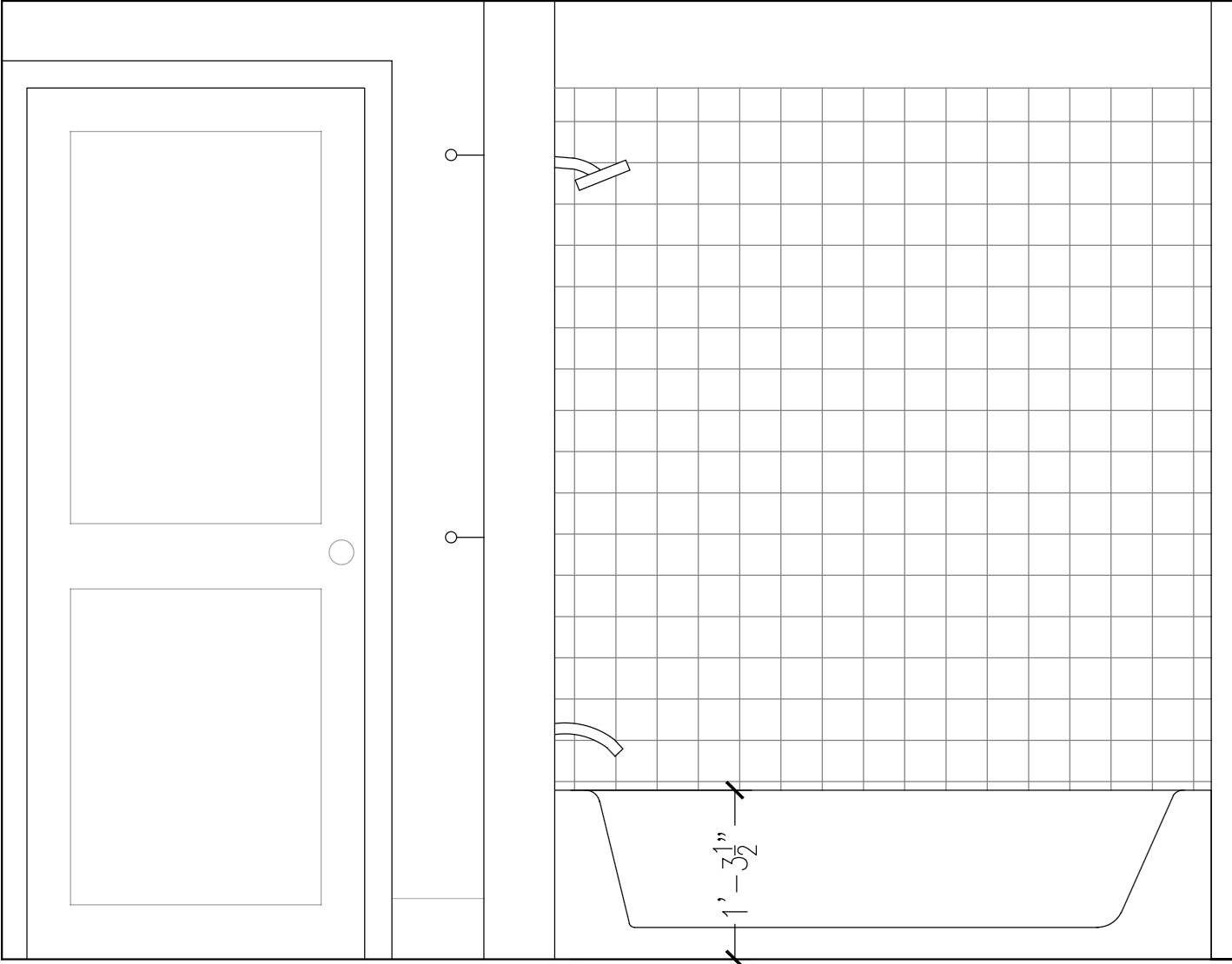
render this elevation tile the 3 shower walls 4x4 in creme add a floor in the same tile walls should be a slightly darker creme door is high gloss griege with a round antique brass doorknob the bath tub a simple rectangle with a consistent top edge the shower head is a gooseneck in nickel put a small conical glass light fixture centered on the ceiling inside the shower put a shower curtain pushed to the right handing from the very top of the shower opening do not put the curtain on a rod attach it to a sliding track on the ceiling hanging from a track on the ceiling the shower curtain fabric should be small brown linen striped and it should hang down to the floor in front of the shower