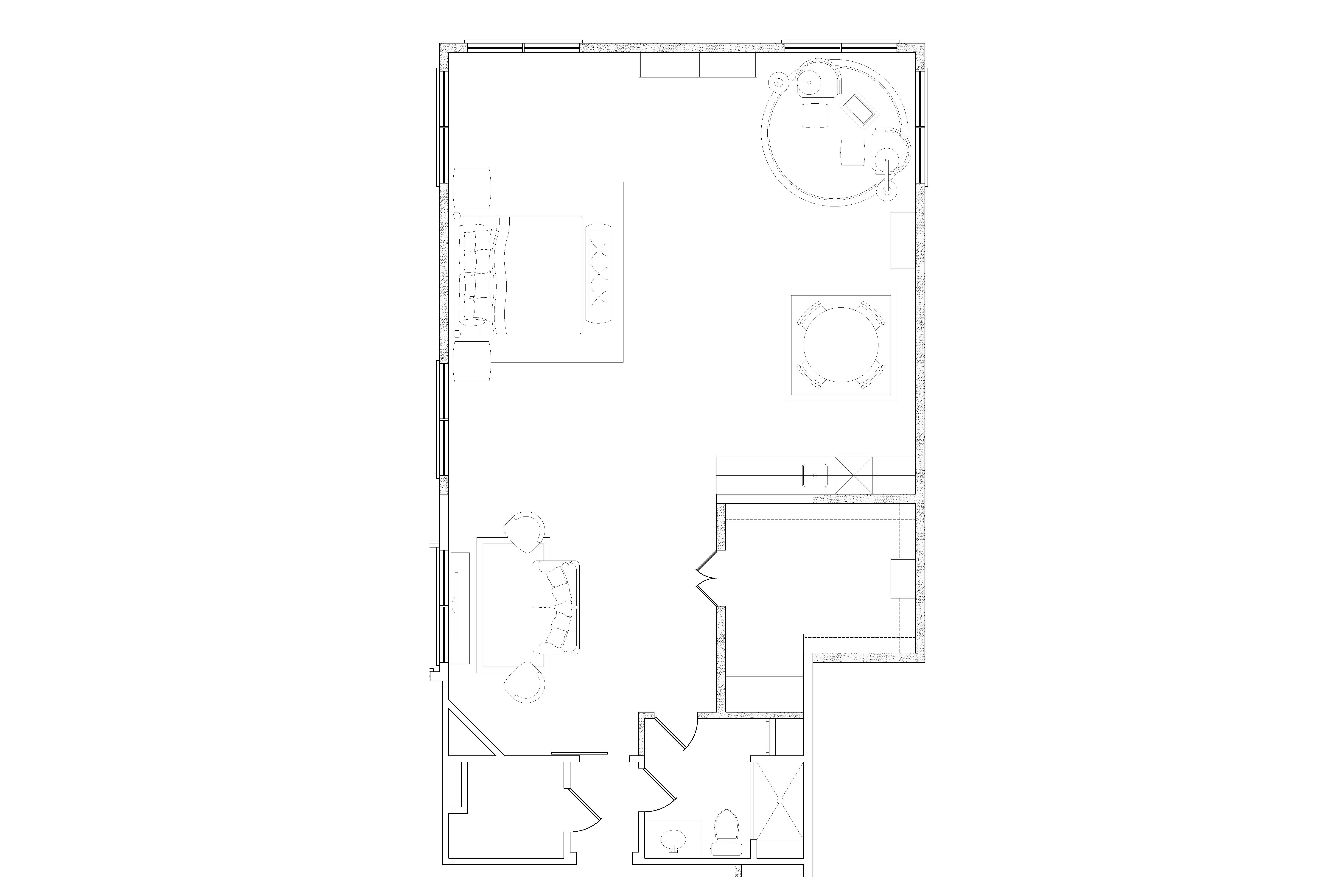
convert this floor plan into a realistic isometric 3d view of a full house show the space from an elevated angle with furniture walls and details visible you are a professional image renderer you create the highest grade renderings around and specialize in architectural renderings this is the floor plan of an efficiency suite create a high resolution photorealistic interior image as if you were standing inside the space keep the windows as they are where they are keep the doors as they are where they are keep the main structure as it is where it is feel free to change the perspective the d cor is that of a luxury estate in the plan northeast corner is a round rug with two swivel chairs and floor lamps on the plan north wall are two sets of double 3 x6 windows with a pair bookshelves between them on the plan west wall there are two sets of double 3 x6 windows with a king size bed and flanking end tables the room in the southeast corner is a master closet any dashed lines are not to be illustrated kitchenette is only one wall on the bedroom side of the master closet wall use the same furniture as shows on the plan do not change the orientation of the floorplan