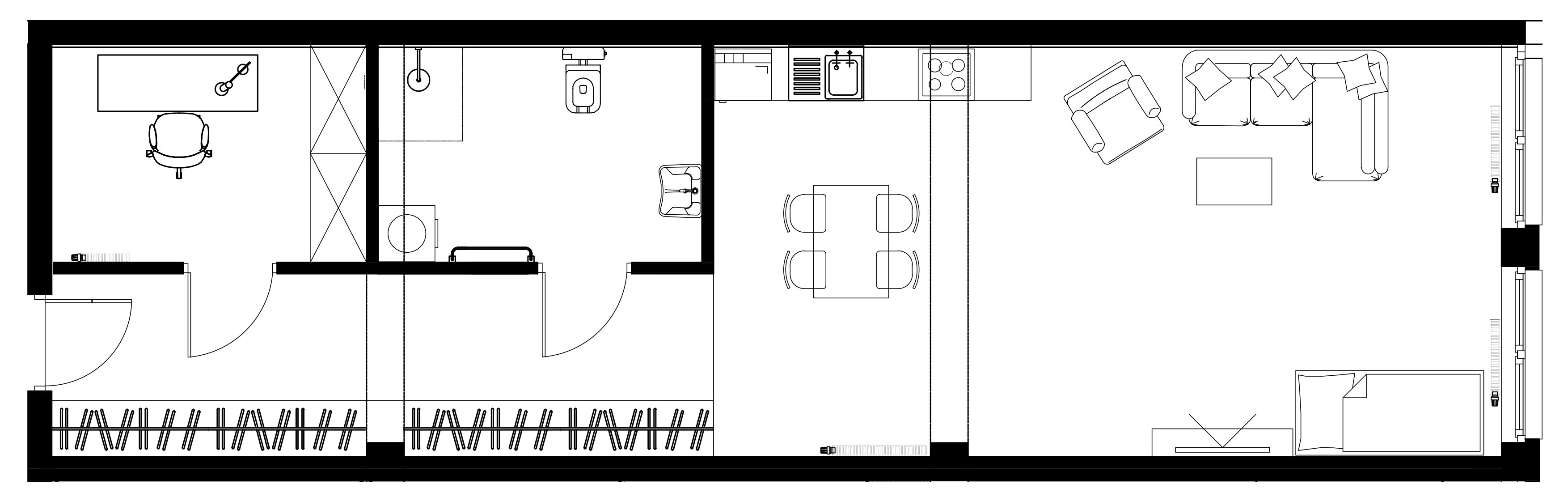
convert this floor plan into a realistic isometric 3d view of a full house show the space from an elevated angle with furniture walls and details visible generate a floor plan of the apartment using a pleasant beige color palette the layout should feel warm elegant and cohesive with soft neutral tones and a clean refined presentation use the same furniture as shows on the plan do not change the orientation of the floorplan