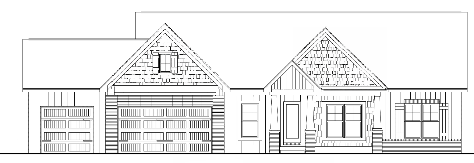
all details need to remain the same just insert colors the brick color is belle grae vertical siding is natural linen by alside shake siding is rustic timber by alside trim around windows and garage doors is desert stone by alside stain color is walnut for the garage doors shutters and front door