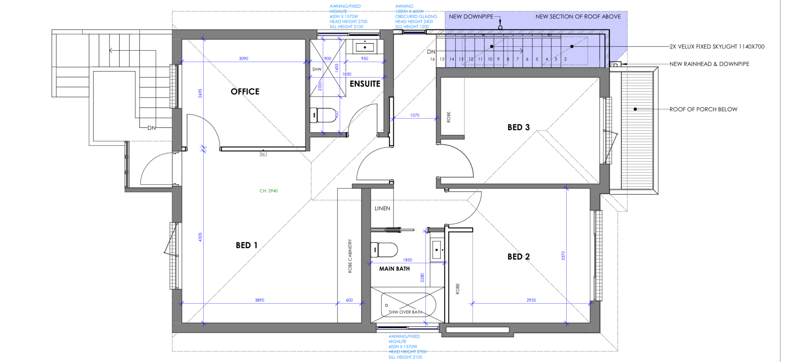
change office to nursery bed 1 should include king bed and bedside tables on the bottom wall bed 3 should include a queen bed and bedsides on the top wall bed 2 please remove the robe on the left and have a full length built in robe with murphy bed along bottom wall