archsynth
Sign Up
Open main menu
Image to 3d model
Compare
Testimonials
Contact us
Log in
→
Signup
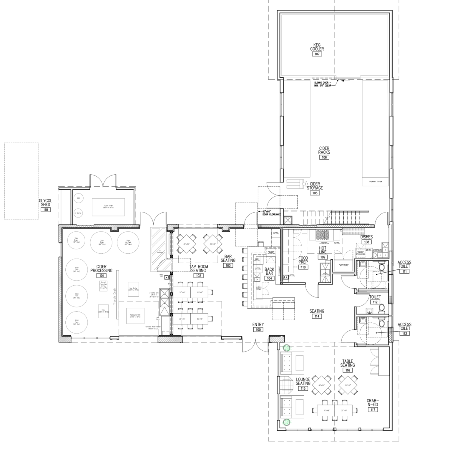
Archsynth generation
Input image
Copy Prompt
make this into a cad drawing
Maintain Colors (v2)
strength 75
seed 9443
Start Creating Renders Now
Related Posts
Start Creating Renders Now
View more