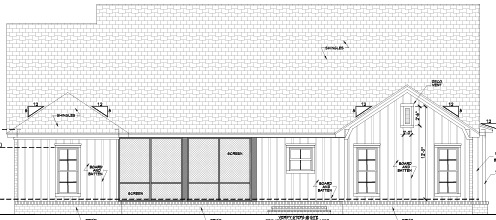
architectural hand sketch rendering of a new american home with white board and batten the bottom brick on the house should be a red distressed like shown in the referenced image the brick should not go higher than the bottom of the screened porch notice the screened in porch as well dark shutters and shingles