archsynth
Sign Up
Open main menu
Image to 3d model
Compare
Testimonials
Contact us
Log in
→
Signup
Archsynth generation
Input image
Mood Board
Copy Prompt
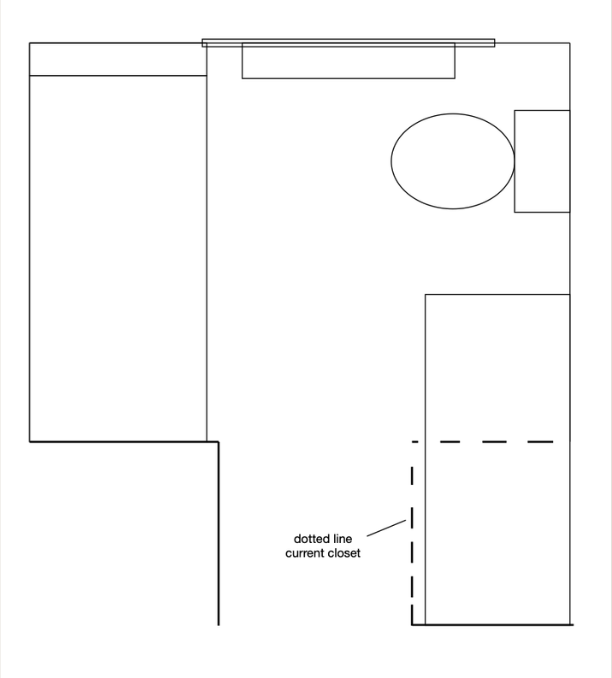
exterior shot please note the wall with the towel holder will be removed that way the larger vanity can fit we will be removing that area
Mood Board
strength 75
seed 6500
Start Creating Renders Now
Related Posts
Start Creating Renders Now
View more