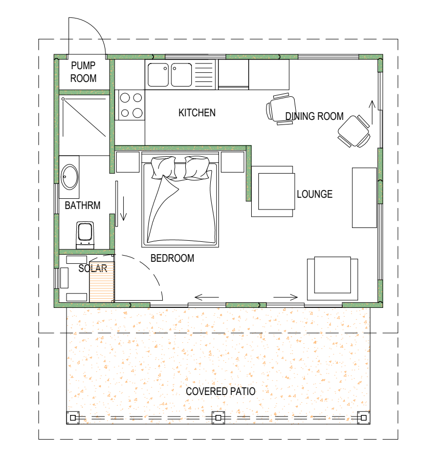
convert this floor plan into a architectural isometric 3d view of a full house show the space from an elevated angle with furniture walls and details visible precast concrete lodge in south african bushveld setting use the same furniture as shows on the plan do not change the orientation of the floorplan