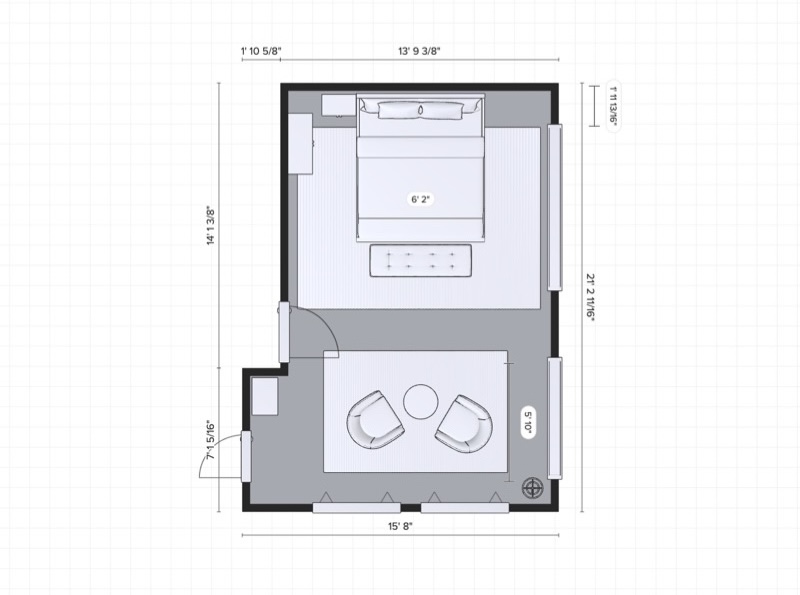
interior shot generate a realistic 3d bedroom render strictly following the attached floor plan and moodboard use the same furniture and materials shown do not replace or modify any item keep the rug bed and chairs identical in color shape and placement match lighting color palette and atmosphere from the moodboard style modern minimal natural tones calm and elegant