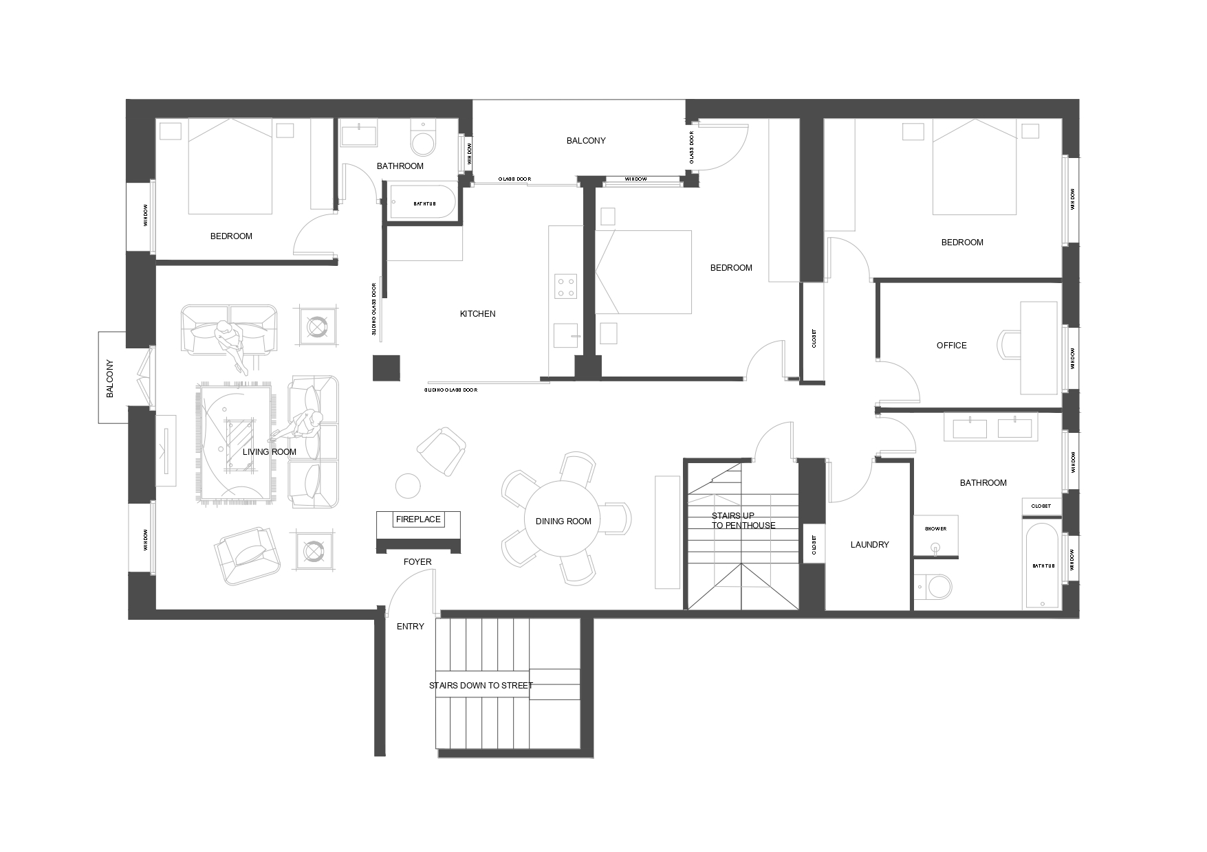
convert this floor plan into a realistic isometric 3d view of a full house show the space from an elevated angle with furniture walls and details visible all floors to be natural oak wood walls in white color i want scandinavian style for all furniture and rugs the kitchen is white and the access to the kitchen in the front and left rigth side are booth paned glass sliding doors in black metal frame the kitchen has access with a sliding door to the back balcony add all funriture you consider to look full and beautiful read carefully where are going every wall doors and windows and keep them as shown in the plans do not add new walls doors and windows and do not made them bigger try to be super faithfull to the layoutplan do not be creative with the layout only furniture use the same furniture as shows on the plan do not change the orientation of the floorplan