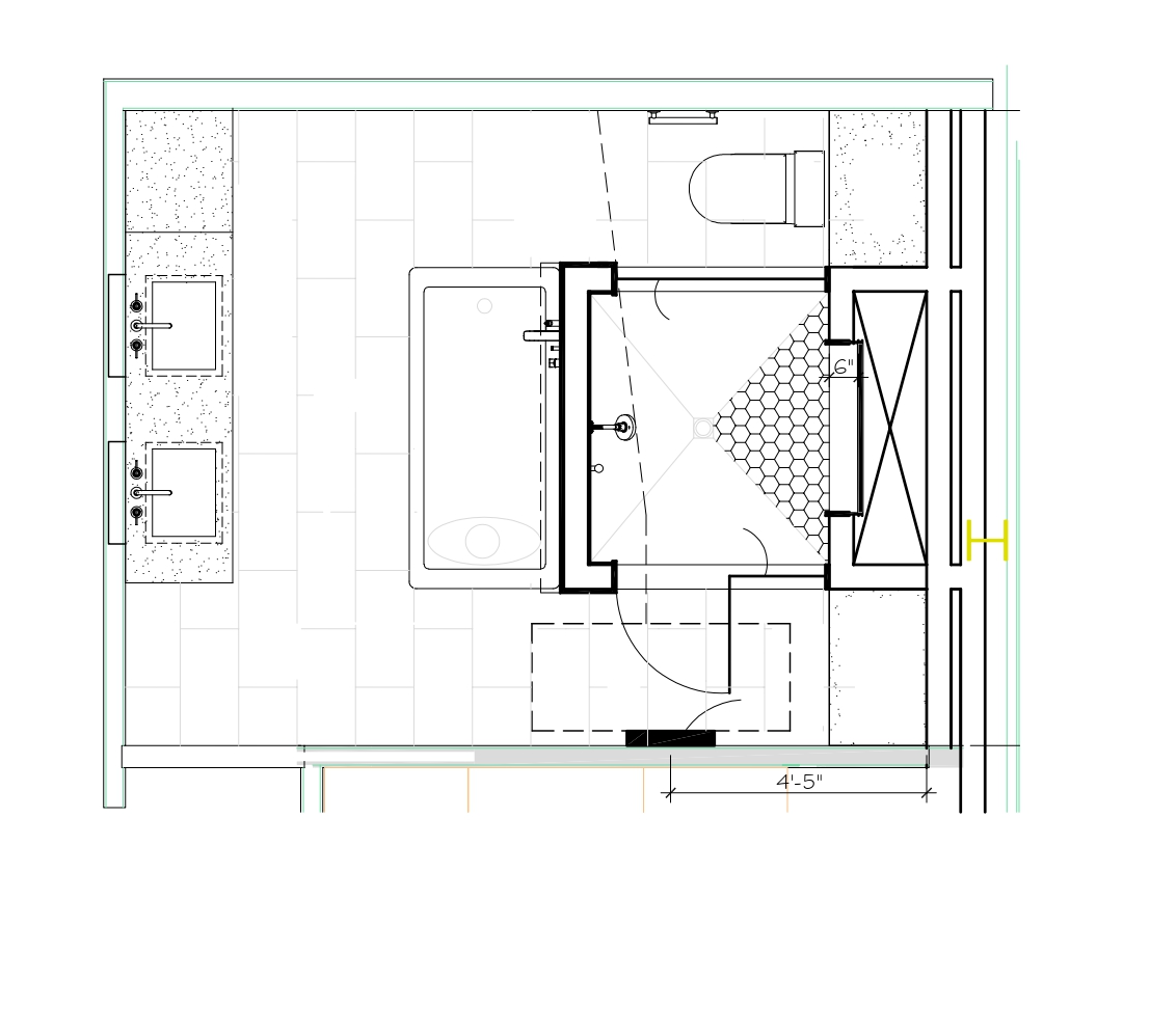
convert this floor plan into a realistic isometric 3d view of a full house show the space from an elevated angle with furniture walls and details visible ceiling height is 9 feet shower wall is 8 feet use the same furniture as shows on the plan do not change the orientation of the floorplan