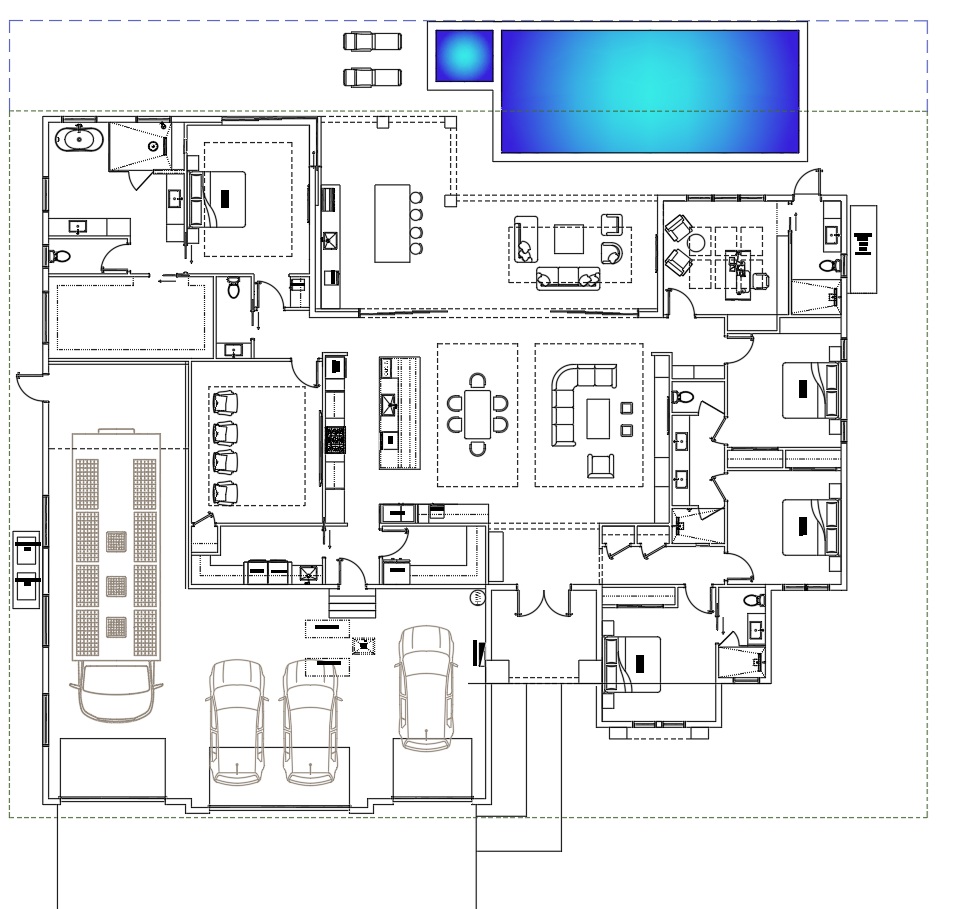
convert this floor plan into a realistic isometric 3d view of a full house show the space from an elevated angle with furniture walls and details visible the flooring is marble porcelain high end coastal furniture and finishes the sliding lass door towards the lanai is 8 panel continous the corner bedroom has a corner sliding glass door the colors are more neutral colors use the same furniture as shows on the plan do not change the orientation of the floorplan