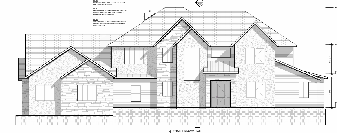
maintain locations of materials as specified on the elevation stucco and siding color is swiss coffee by benjamin moore stone is casablanca by el dorado stone all trim and fasica is white metal roof is by drexel metals in color champagne shingle roof is the same color as the metal roof