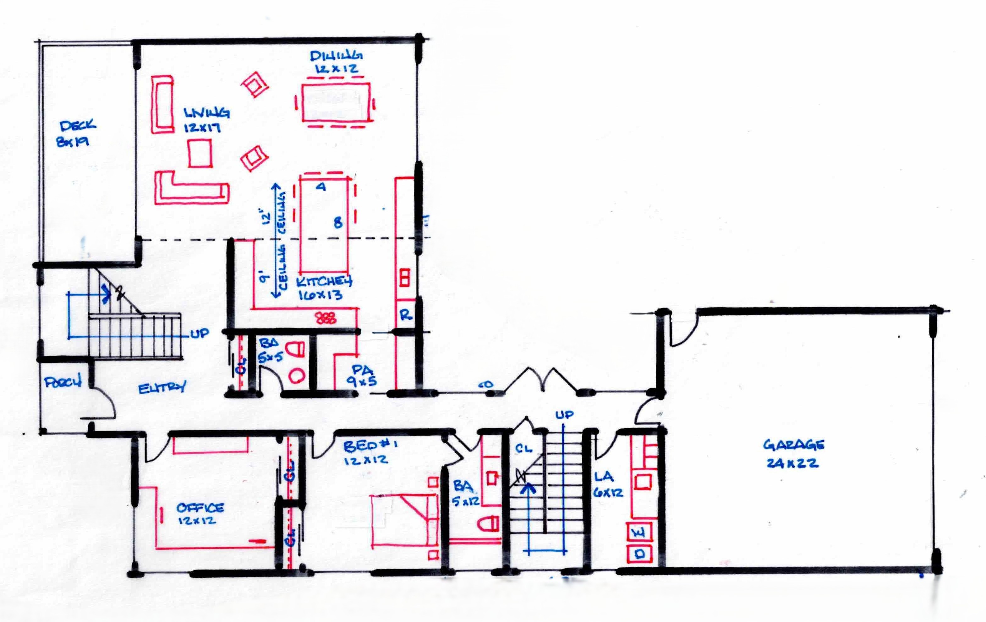
convert this floor plan into a realistic isometric 3d view of a full house show the space from an elevated angle with furniture walls and details visible simple elegant furniture with no clutter use the same furniture as shows on the plan do not change the orientation of the floorplan