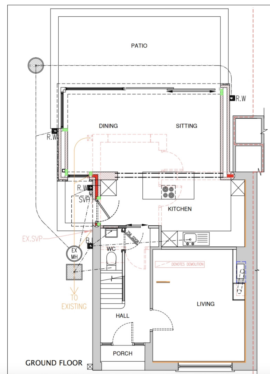
convert this floor plan into a realistic isometric 3d view of a full house show the space from an elevated angle with furniture walls and details visible add in a dining table near the dining section and remove the word dining make the frames on the sliding glass much thinner and bring them right to the top left edge of the corner of the house only two panels of glass remove the jack and jill boiler house on the right side and make the extension part move into that section move the fireplace in the front room into the corner nearest the chimney breast put carpet on the front living room also and remove the work living use the same furniture as shows on the plan do not change the orientation of the floorplan