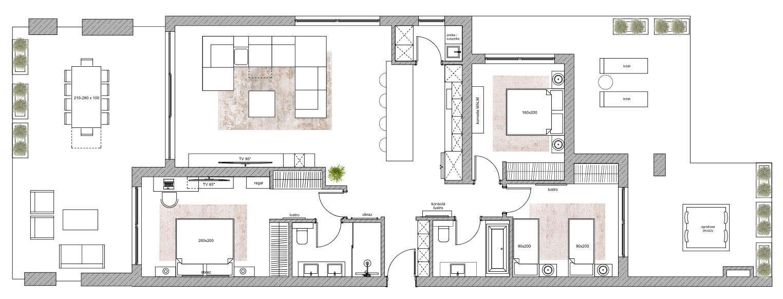
convert this floor plan into a realistic isometric 3d view of a full house show the space from an elevated angle with furniture walls and details visible na p od odze du e jasnoszare p ytki w salonie naroznik modu owy plazza firmy gala gcollezione w salonie nie ma foteli a na wyspie jest tylko p yta indukcyjna w du ej sypialni po prawej stronie rega do sufitu na tarasach p ytki okna s antracytowe kolorystyka wn trza jasna sofa jasnoszara w sypialni po lewej rega use the same furniture as shows on the plan do not change the orientation of the floorplan