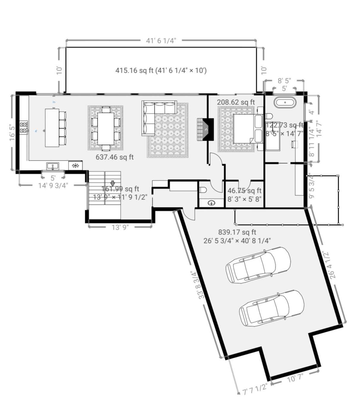
convert this floor plan into a realistic isometric 3d view of a full house show the space from an elevated angle with furniture walls and details visible warm cozy vibes natural colours with some few pops of colours marble stone field stone included use the same furniture as shows on the plan do not change the orientation of the floorplan