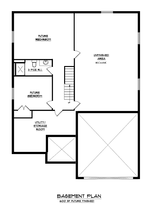
show floor plan show medium hardwood through out show medium size furniture concrete floor in garage show text and room sizes move garage man door inline with left side wall remove furniture in utility room and rec room remove hardwood in utility room