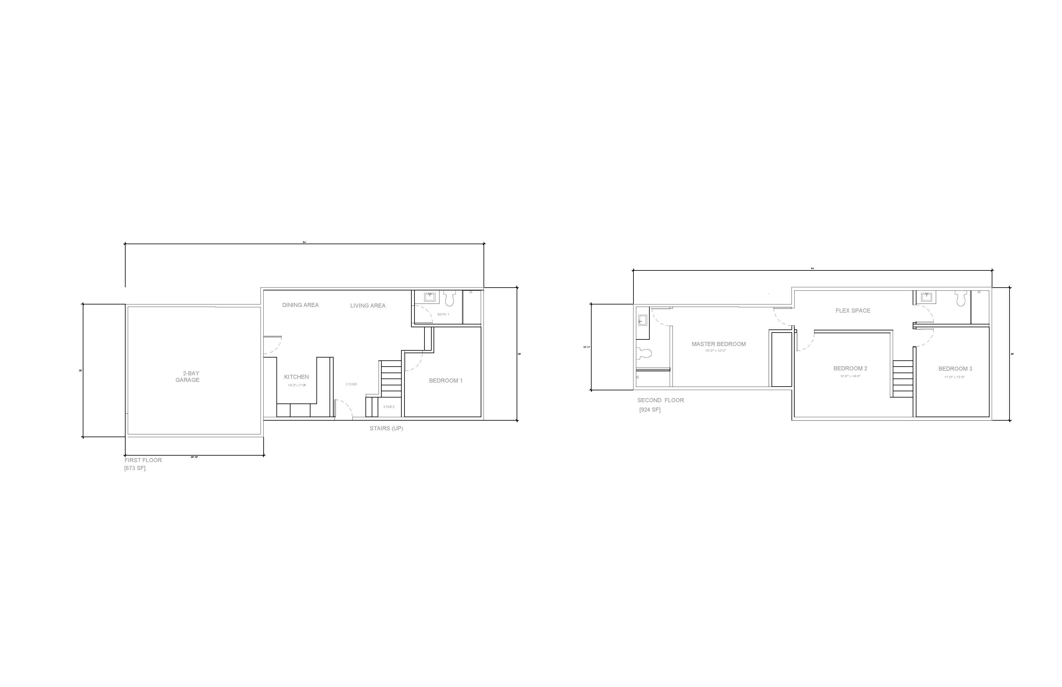
convert this floor plan into a realistic isometric 3d view of a full house show the space from an elevated angle with furniture walls and details visible generate an exterior view incorporating both floor plans into one 2 story home do not alter the placement of the rooms place the first floor on the bottom and the second floor on top of the first floor show the garage and entry door as the front view use the same furniture as shows on the plan do not change the orientation of the floorplan