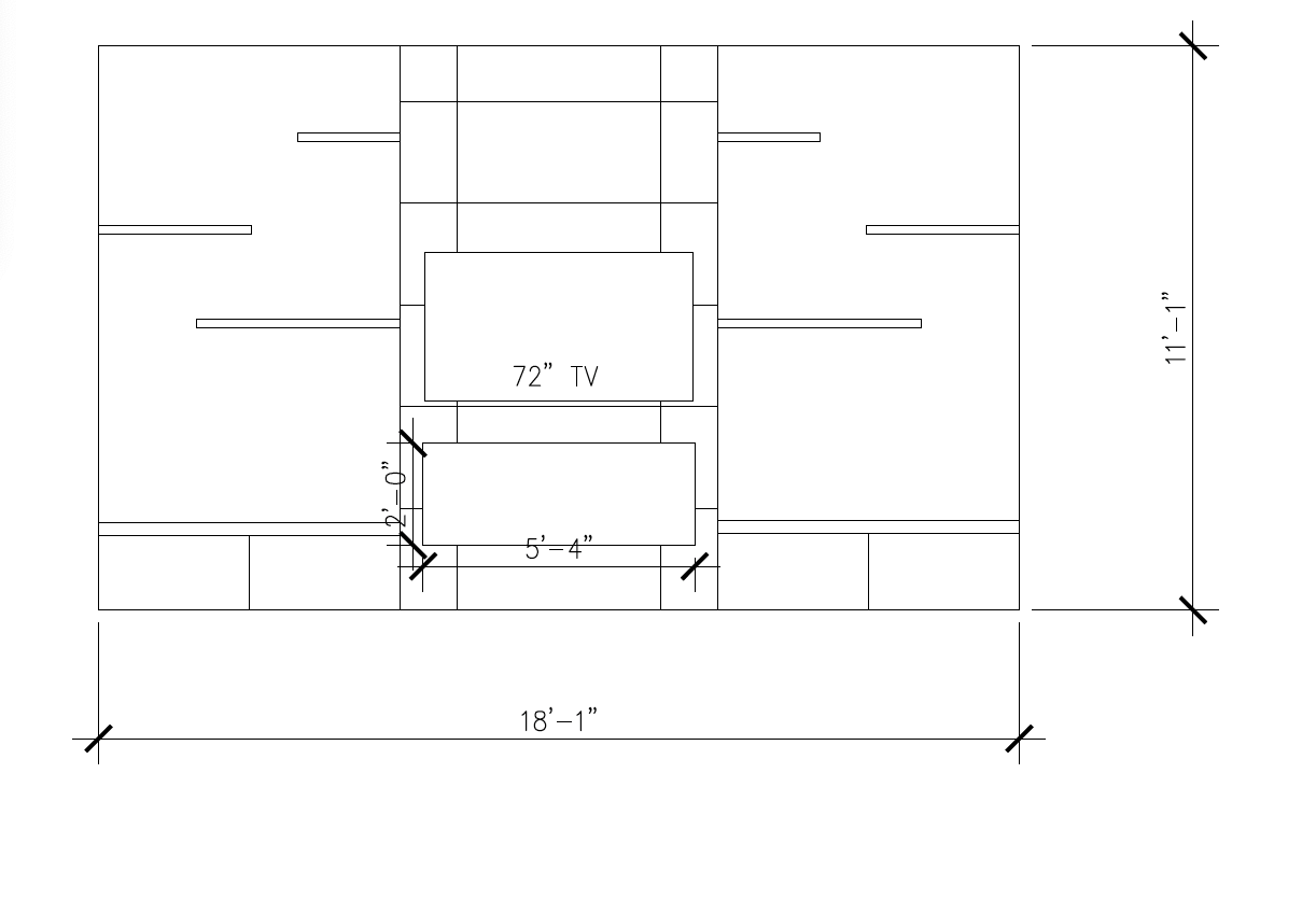
the center section of the elevation should have a modern fireplace with an art tv above the center section should also have 24x48 stone tiles that have a horizontal texture in a natural cream color the two side sections will be the same and be finished in natural plaster the bottom is seating with drawers the drawers will be in a medium oak tone with a taj majal stone top the open shelves above should be in the same medium tone wood architecture