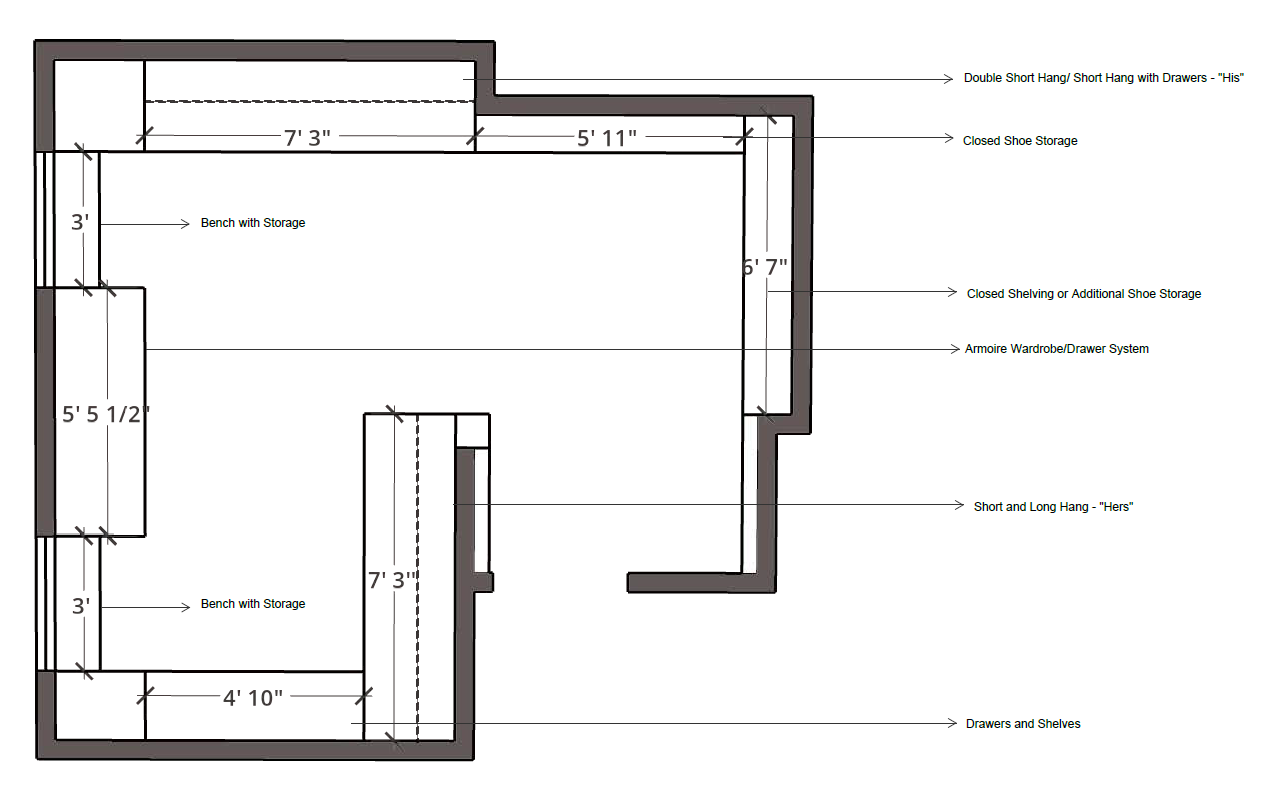
convert this floor plan into a realistic isometric 3d view of a full house show the space from an elevated angle with furniture walls and details visible this is a primary closet in yellowstone club montana so modern and ultra luxury closet with integrated led lighting floor to ceiling cabinets with neutral tones follow dimensions on plan along with the notes that follow the arrows to indicate the cabinet sections use the same furniture as shows on the plan do not change the orientation of the floorplan