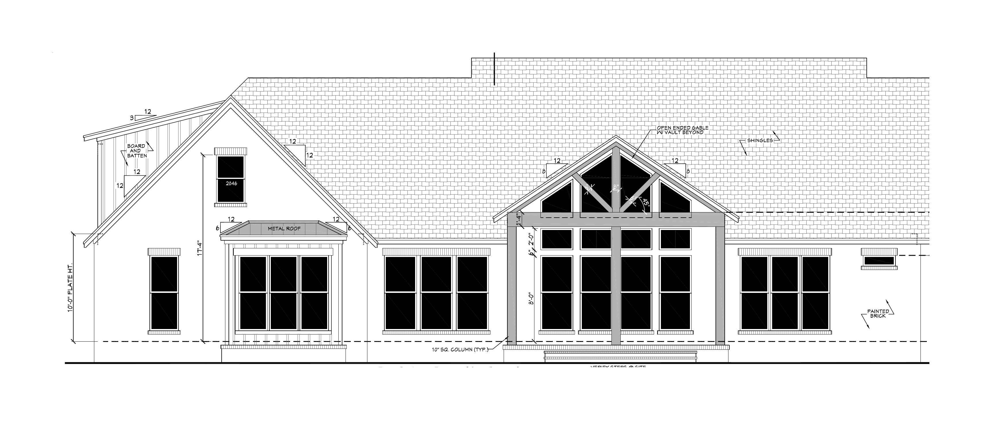
white brick siding everywhere but make the dormer white shaker cedar style with black shingle roof make the wooden beems cedar