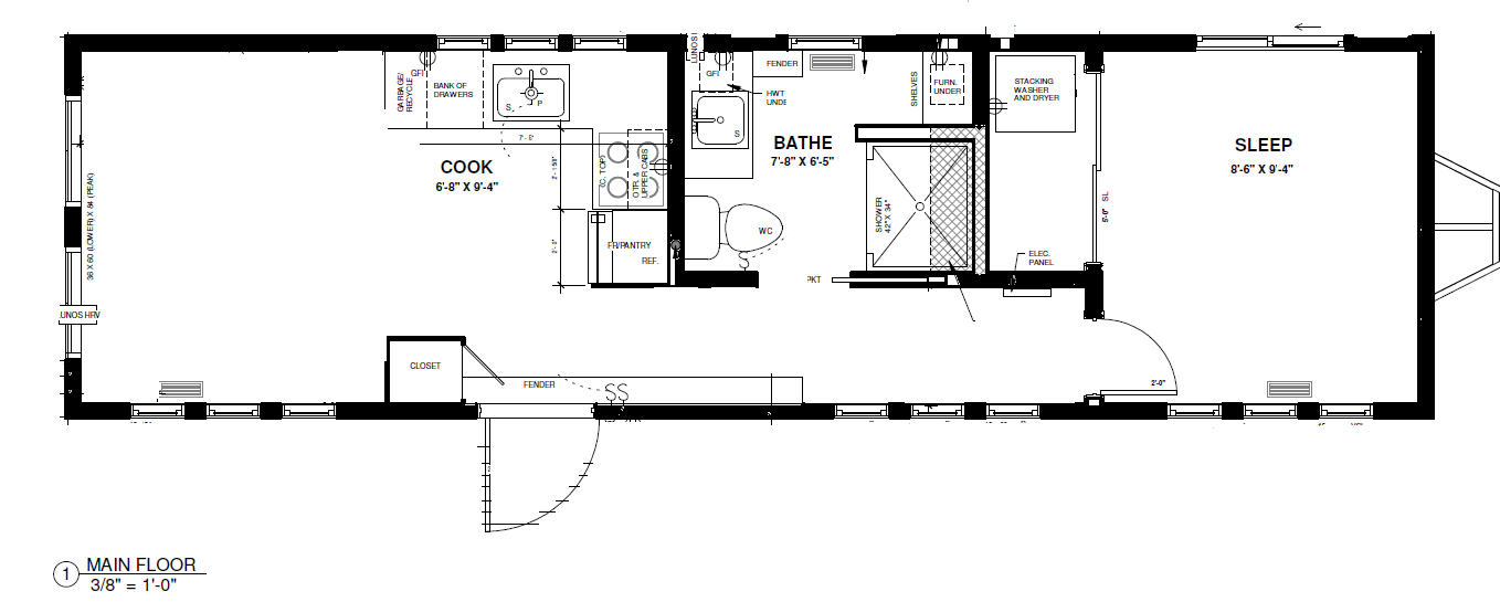
add furniture and do a 3d rendering of this interior floorplan