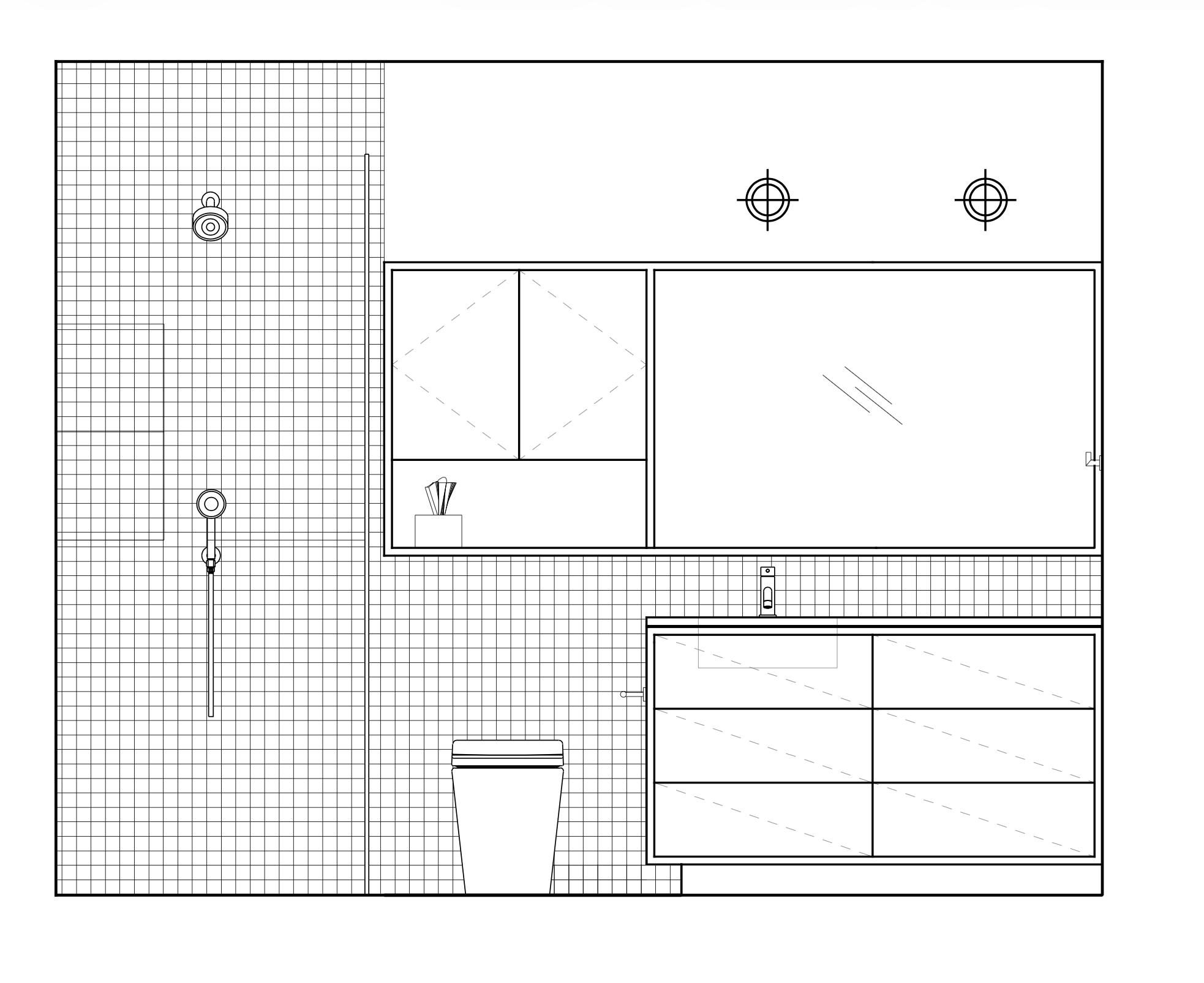
modern bathroom 2x2 square cream tile with matching grout on all shower walls floor and wall behind toilet and cabinetry white painted walls everywhere else walls with matching grout brushed nickel plumbing fixtures cabinetry is ash in a natural stain 4 recessed toe kick on front and left countertop is a warm beige gray stone mirror and upper cabinetry is flush with the wall with 4 wood ledge toilet is white tankless apron to the floor with open shelf and cabinetry above curbless shower with glass door 12x14 niche next to handshower