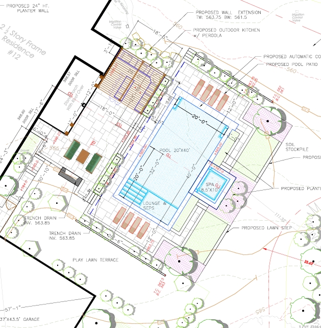
8k rendering realistic of an outdoor living per the layout above with turkish sandblasted marble patio danver kitchen in dark finish modern fireplace black plaster pool walls in finished stone veneer square and rec with blue and gray tones plantings and landscape per the design of a house placed in armonk ny