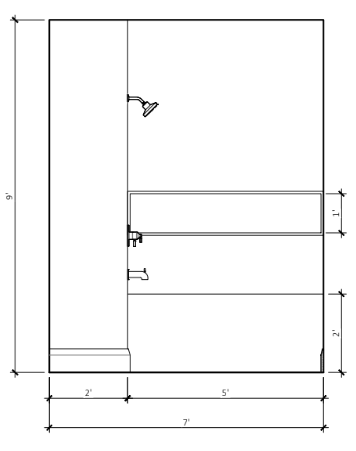
here is an elevation of a shower with a niche and bath tub please create a render that is an accurate representation of the scale of the elevation plumbing fixtures to be brass shower wall tile and niche to be the tile in the reference image white tub