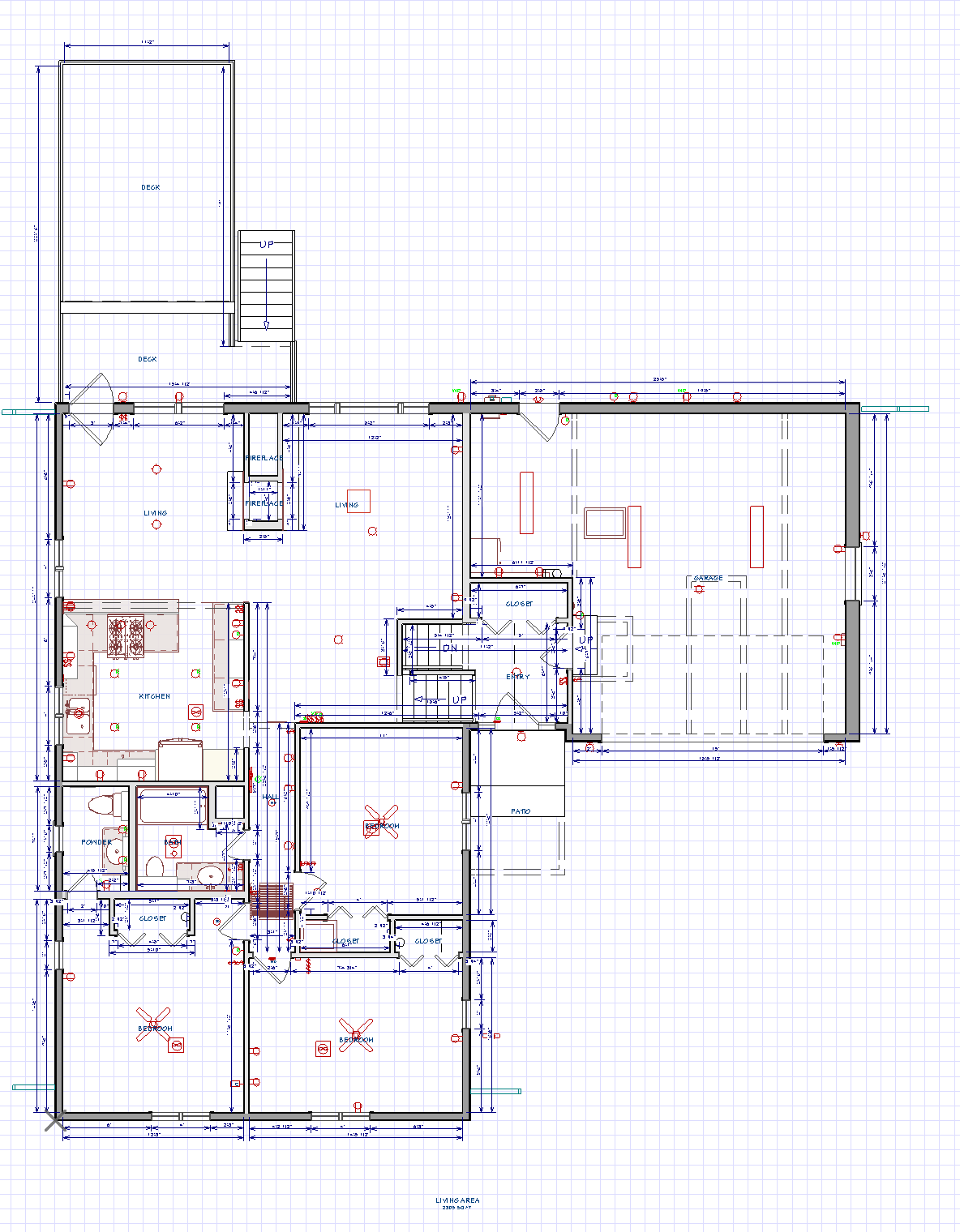
remodel this house with a 600 000 budget this is the main floor plan and attached garage client wants two home offices a guest bedroom a main floor primary suite with large closet and primary bath remove fireplace from both levels and expand the kitchen all new window design with large windows on back of home and front of main level