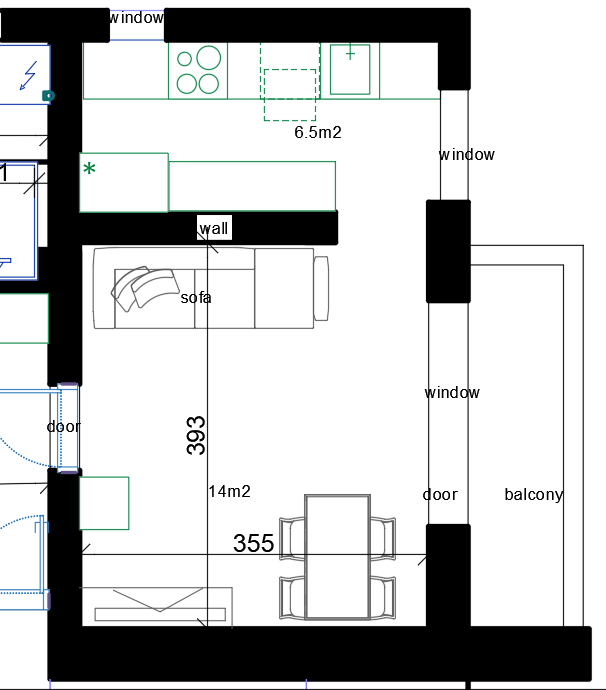
convert this floor plan into a realistic isometric 3d view of a full house show the space from an elevated angle with furniture walls and details visible this is a floor plan of a living room and kitchen make a 3d interiour visualization based on the floorplan layout walls are solid black furniture should be exactly like it is in floor plan doors and windows are anotated in text use the same furniture as shows on the plan do not change the orientation of the floorplan