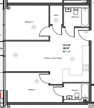
convert this floor plan into a realistic isometric 3d view of a full house show the space from an elevated angle with furniture walls and details visible make the bedrooms have carpet for flooring the bathrooms to have showers above the baths and green tiles use the same furniture as shows on the plan do not change the orientation of the floorplan