archsynth
Sign Up
Open main menu
Image to 3d model
Compare
Testimonials
Contact us
Log in
→
Signup
Archsynth generation
Input image
Copy Prompt
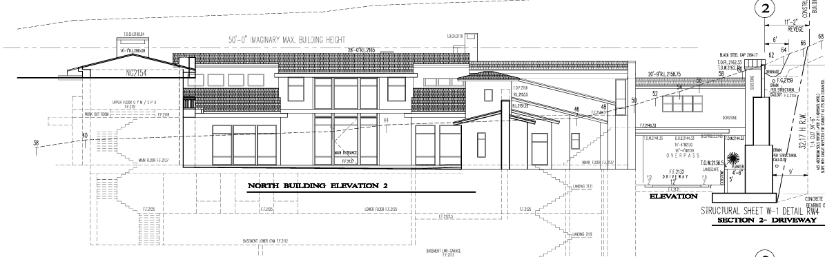
the picture i sent below for reference is the color scheme i want please make house look like a realistic photothe tall glass area in the front is the front door please make a nice entry way or path or front lawn area
Freestyle
strength 75
seed 10
Start Creating Renders Now
Related Posts
Start Creating Renders Now
View more