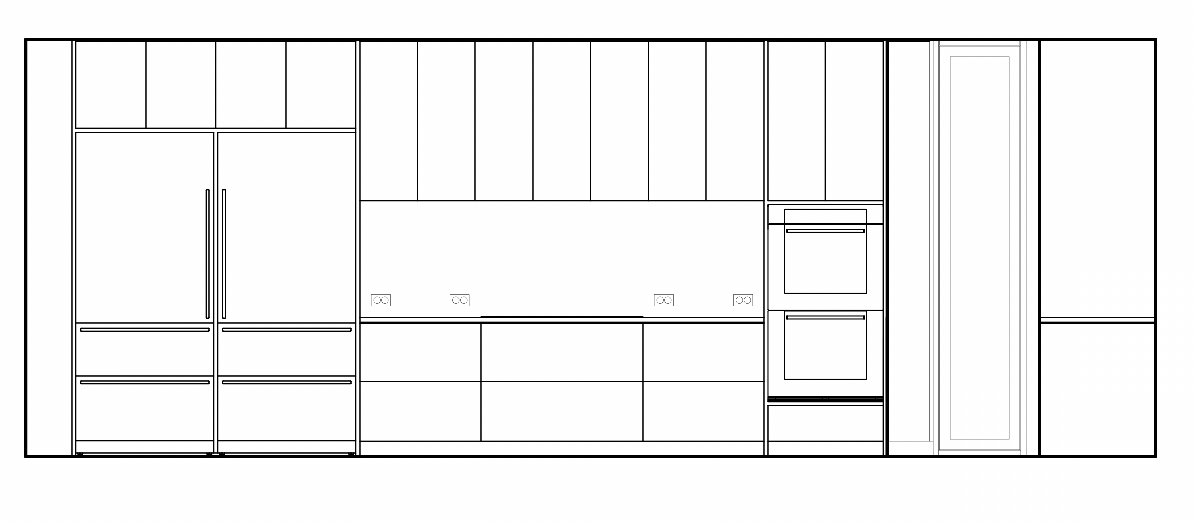
serene and natural kitchen wall looking into pantry beyond in the vermont mountain side cabinets are ash vertical grain with a natural stain countertop is a white gray marble with a full height backsplash over under panel ready refrigerator freezer double stacked ovens stainless steel 42 in induction cooktop with hidden hood stainless steel potfiller hidden integrated pulls on cabinetry wide and long plank ash floor natural stain