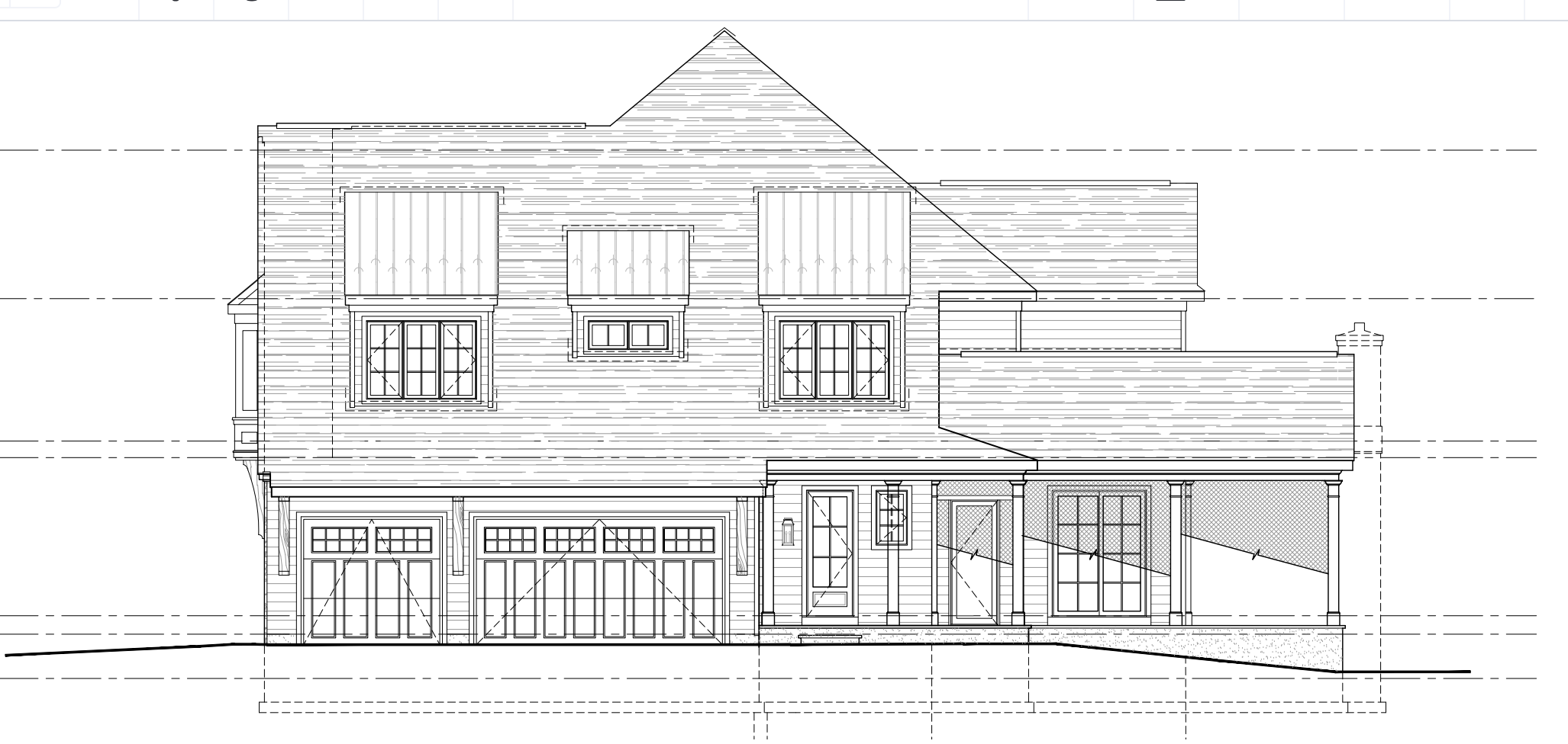
use the provided elevation as the base image keep the elevation exactly the same do not crop zoom resize or reconfigure the image in any way maintain the original structure proportions rooflines dormers window and door placement and overall layout exactly as shown do not redesign or reinterpret the architecture apply the following material and finish updates only main siding clean white siding main roof black asphalt shingles dormer shed roofs black or charcoal standing seam metal roofing garage doors white all windows and doors black wood corbels keep natural wood tone do not paint enhance the image to a high end photorealistic architectural rendering add realistic lighting shadows and material textures while keeping the design unchanged maintain a clean natural color balance and realistic environment do not alter the massing proportions or architectural details beyond the material changes listed above