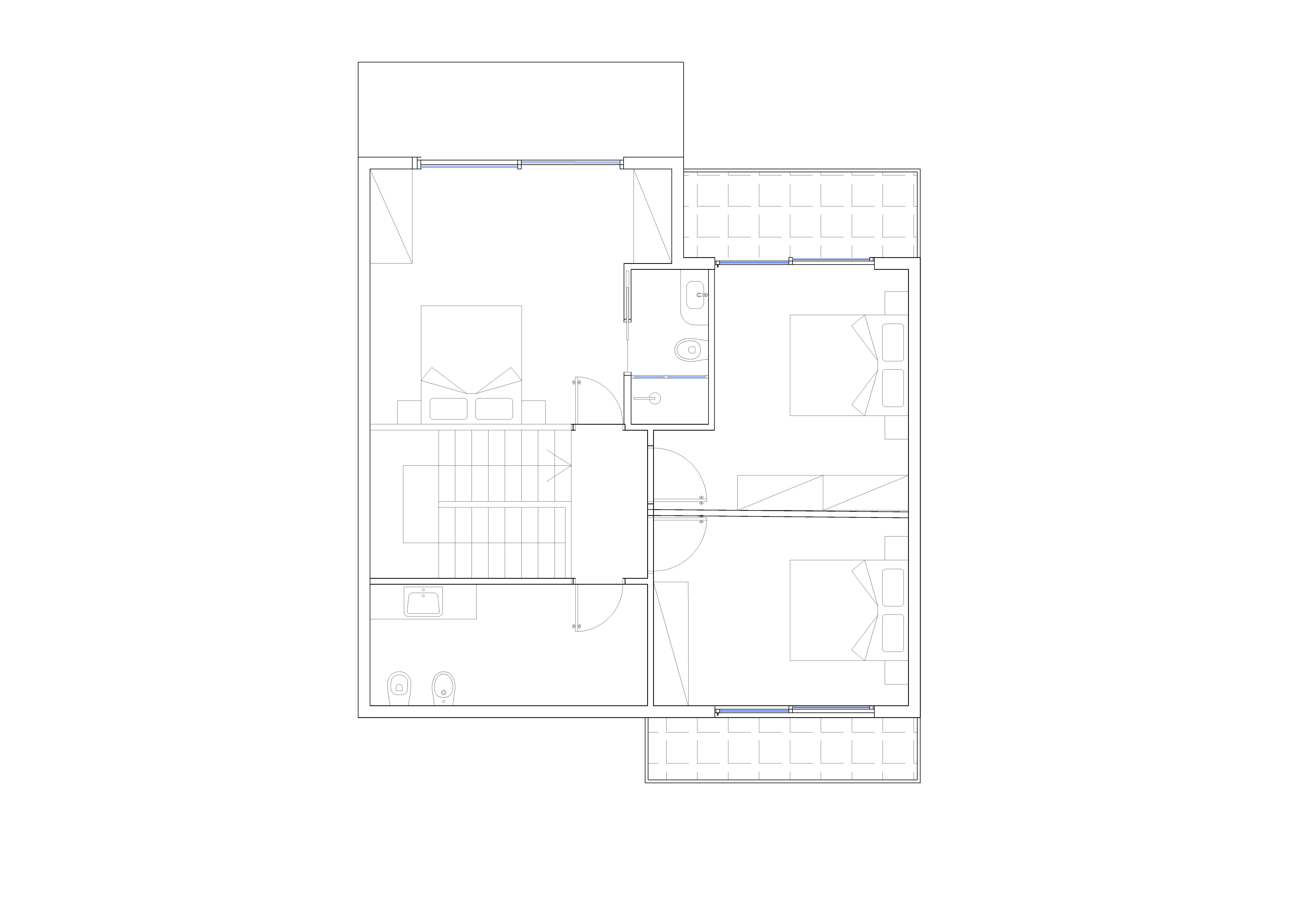
convert this floor plan into a realistic isometric 3d view of a full house show the space from an elevated angle with furniture walls and details visible generate a beautifully rendered architectural floor plan use soft gray for walls light beige for floors the atmosphere should be bright and inviting with warm natural lighting that highlights the design add shadows and subtle textures for depth and realism use less colour neutral ones use the same furniture as shows on the plan do not change the orientation of the floorplan