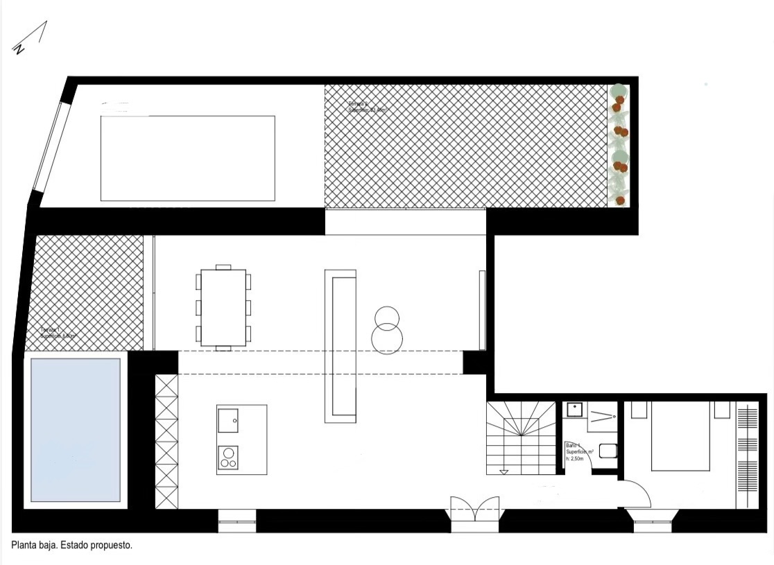
convert this floor plan into a realistic isometric 3d view of a full house show the space from an elevated angle with furniture walls and details visible modern luxury villa ground floor isometric render open plan living room dining kitchen large sliding glass doors to terrace realistic pool water minimalist architecture beige and warm wood materials soft natural daylight clean layout high end furniture architectural visualization ultra realistic textures shadows and reflections use the same furniture as shows on the plan do not change the orientation of the floorplan