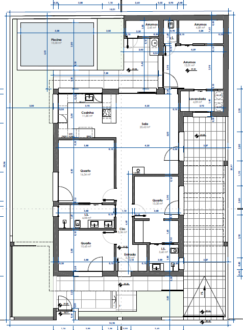
use the uploaded architectural floor plan as exact geometric reference analyze walls doors windows structural thickness and room divisions ignore dimension texts annotations and blue measurement lines focus only on structural boundaries create a clean 3d architectural model of this single storey house maintain exact proportions and layout ceiling height 2 60 meters keep correct wall thickness generate a top view axonometric 3d floor plan without furniture neutral white materials only professional architectural visualization accurate proportions